99 South Parkwood Boulevard, Woolwich, ON N3B 0E6 (South Parkwood & Timber Trail)

Price : $899,900.00 , MLS®# : X12732246

Description

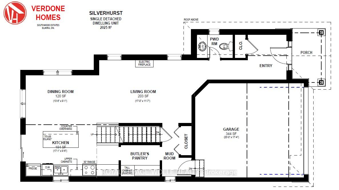
Introducing Verdone Homes new Single Detached model with over 2000 sq feet, 4 beds and 3 baths to be built in Elmira's Southwood Park Subdivision! Welcome to 99 South Parkwood Blvd, located close to walking trails and farmland, this brand new beauty combines the serenity of small town living with the convenience of a 5 minute drive to Waterloo. This 2-storey home features an impressive main floor layout with an eat-in Kitchen, custom cabinetry, large island and a convenient butlers pantry. The second floor features a laundry room, 2 bathrooms, 4 good sized bedrooms including a luxurious primary suite with walk in shower. Verdone Homes is a local builder with a reputation of integrity and quality craftmanship. Act now to make this YOUR dream home with YOUR finishes! **Verdone Homes has other detached models and Semi Detached Bungalow homes also available. Reach out for more information. The pictures in listing are from a Semi Detached bungalow built this year and is intended to show the finishes you can expect from a Verdone Home. They do not represent the design or layout of this home.**

Location Description

South Parkwood & Timber Trail

Property Details
  • Community:
  • Property Type: Vacant/Residential Freehold
  • Bedrooms: 4
  • Bath: 3
  • Garages: Attached
  • Annual Property Taxes : $ 0
Building Features
  • Foundation Type: Poured Concrete
  • Counstruction Material : Stone-Brick
  • Total Parking Space : 3
  • Parking Type : Attached
Building Features
  • Heating : Forced AirGas
  • Sewer : Sewer ,
Land (Lot Features)
  • Frontage: 36.14 sq.ft
  • Land Depth: 105.13sq.ft

Listing Contracted With: ROYAL LEPAGE WOLLE REALTY