27 Front Street W, Strathroy-Caradoc, ON N7G 1X5 (Front St W and Frank St)

Price : $2,400.00 , MLS®# : X12728788

Description

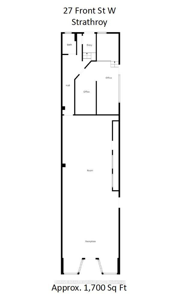
1,700 Sq Ft of newly renovated commercial retail space in the heart of downtown Strathroy. The unit includes a bright, large, and renovated open concept main room, a beautifully renovated office/treatment area located at the rear and a large basement for excess storage. This unit includes both downtown street parking at the front and a parking lot for customers and staff located at the rear. C1 zoning permits a wide range of uses. The space is being offered at $2,400/month + HST and utilities.

Location Description

Front St W and Frank St

Property Details
  • Community: NW
  • Property Type: Vacant/Commercial
  • Garages: None
  • Annual Property Taxes : $ 2664
Building Features
  • Parking Type : None
Building Features
  • Heating : Gas Forced Air Open
Land (Lot Features)
  • Frontage: 25 sq.ft
  • Land Depth: 160.84sq.ft
  • Square Footage : See remarks

Listing Contracted With: THRIVE REALTY GROUP INC.